Timeline
dylan.najera
added to the journal ago
Improving the PCB
I spent a lot of time working on the PCB, and I realized a critical mistake I had with the modules I had added, which was that I had forgotten to check the datasheet, so I didn't know if my connections were correct or not, and upon reviewing them, all of them were incorrect. So I started fixing all of them and added other modules; so far, I have the SGP41, LIS3DH, SHTC3, WS2812B-2020, VEML6075. I fixed the connections for all of them except the LIS3DH, which I still need to do. The entire bottom part of the board looks super crowded and literally has no more space. I’m going to fix that connection on my board and then work on making it work with a battery, and I’ll see if I add some load switches to cut power to the modules when they’re not in use on the board.



dylan.najera
added to the journal ago
Improving the PCB
I was working on finishing the PCB, but I ran into multiple problems with some of the tools, ending up extremely stressed but determined to fix those errors. I had to research for a while to fix them, but in the end it was easy to solve and I was just complicating things for myself. I checked how it would look when sent to JLCPCB in black and it looks beautiful. I'm almost decided to send it for manufacturing, but I'm going to add some visual elements to the silkscreen.



dylan.najera
added to the journal ago
I started and almost finished the PCB

I have been working on the PCB, and yes, it was very difficult for me at first to make the traces, but that was because I had it in the wrong routing mode, so when I changed it, it became much easier. After finishing the PCB with the basics, I decided to add two extra things: a temperature and humidity sensor and a Neopixel LED. I'm thinking about seeing if I can make it battery-powered, which would help a lot, and I'm considering adding a motion sensor.
dylan.najera
added to the journal ago
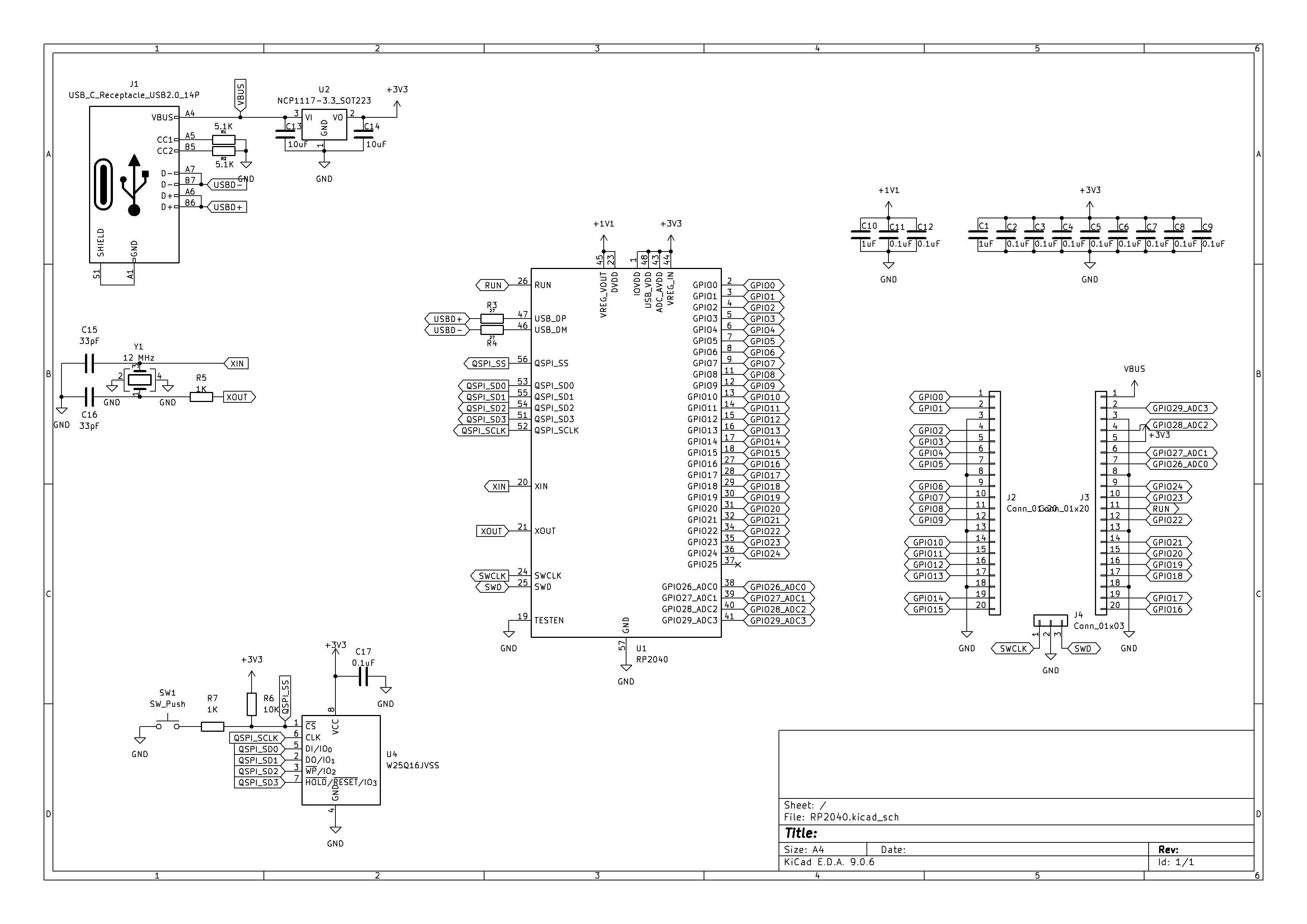
I finished the schematic design

In the first two hours, I was working on the schematic, then I will start with the PCB. It was somewhat easy for me to do, but I am thinking about adding a Neopixel or something in the future, but that will be after making the PCB.
dylan.najera
started RP2040 ago